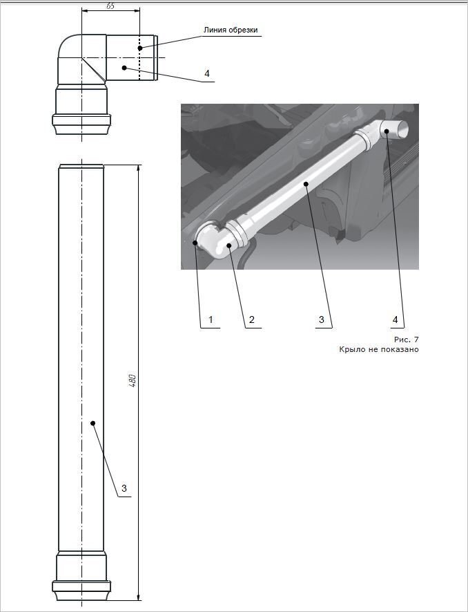
Шноркель на Ниву Шевроле / Лада Нива / Нива Тревел представляет собой трубку, с воздухозаборником на верхней его части. Основное его предназначение - защита двигателя автомобиля от попадания воды.
С таким устройством автомобиль можно безопасно погрузить в воду, будучи уверенным, что двигатель останется целым и невредимым. Шноркель на Ниву значительно снижает возможность попадания воды в двигатель внедорожника, тем самым предотвращает серьезную поломку - гидравлический удар.
Защита от воды является не единственной функцией шноркеля.
Он необходим при прогулках по песчаным просторам и предназначен для обеспечения постоянного притока чистого воздуха в двигатель, что достигается путем перемещения точки забора воздуха в более безопасное и менее пыльное место.
Шноркели изготавливаются из стеклопластика и оптимально подходят для установки на авто и поставляются без окраски.
Устанавливается вдоль левой двери. Без доработок устанавливается под заводские (серийные) рейлинги.
Для остальных видов рейлингов (независимых производителей) возможно потребуется доработка.
ВНИМАНИЕ !
1. Для установки требуется доработка крыла и системы забора воздуха.
2. Цвет шноркель без окраски может быть не однородным. Содержать на своей поверхности белые полосы, это зависит от цвета смолы!
Для Chevrolet Niva GLS, GLC, LE+.
Поставлялся: на GM-AVTOVAZ, АО "АвтоВАЗ"
Свойства
- Материал - композит высокой прочности
Варианты исполнения отвода воздушного фильтра:
для автомобилей с АБС и без АБС
